上海恒點傳動設備有限公司
加微信聯系 恒點減速機QQ2:51228482
[HTML] [XML]  産品展示産品展示-RSS  新聞中心新聞中心-RSS  技術支持技術支持-RSS
産品分類: 減速機蝸輪絲杆升降機轉向箱蝸輪蝸杆減速機齒輪減速機行星齒輪減速機擺線針輪減速機無級變速機大功率減速器
上海恒點傳動設備有限公司
資訊分類
和産品相關的技術文章
當前位置:網站首頁 > 技術支持 > 錐齒輪圖樣上應注明的尺寸數據(GB12371-90)

錐齒輪圖樣上應注明的尺寸數據(GB12371-90)

Tags: RV蝸輪蝸杆減速機    發布時間: 2014-08-19
錐齒輪圖樣上應注明的尺寸數據(GB12371-90)
本标準參照採用ISO1341-1976《直齒錐齒輪——爲獲得所需要的齒輪用戶提供給制造廠家的數據》。
1主題内容與适用範圍
本标準規定瞭直齒及相交軸弧齒錐齒輪在圖樣上應注明的尺寸數據。在特殊情況下,還應補充其他的數據。
本标準适用於直齒及相交軸弧齒錐齒輪。
2引用标準
GB12368 錐齒輪模數
GB12369 直齒及斜齒錐齒輪基本齒廓
GB11365 錐齒輪和準雙曲面齒輪精度
GB12370 錐齒輪和準雙曲面齒輪術語
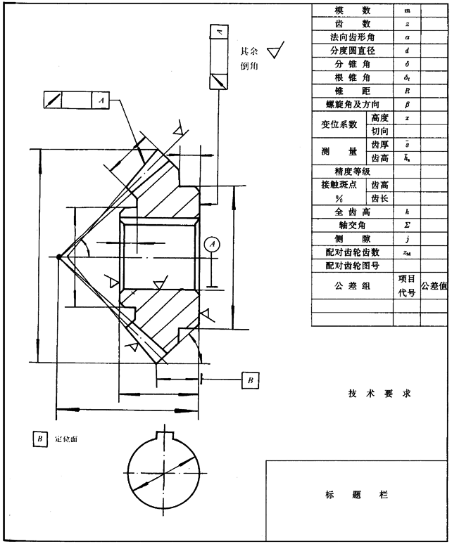
3需要在圖樣上标注的一般尺寸數據
3.1齒頂圓直徑及期公差。
3.2齒寬。
3.3頂錐角。
3.4背錐角。
3.5孔(軸)徑及其公差。
3.6定位面(安裝基準面)。
3.7從分錐(或節錐)頂點至定位面的距離及其公差。
3.8從齒尖至定位面的距離。
3.10齒面精糙度(若需要,包括齒根表面及齒根圓角處的表面粗糙度)。
4需要用表格列出的數據及參數
4.1模數(一般爲大端端面模數)。
4.2齒數(對扇形齒輪應注明全齒數)。
4.3基本齒廓(符合GB 12369時僅注明法向齒形角,不符合時則應以圖樣表明基特性)。
4.4分度圓直徑(對於高度變位錐齒輪,等於節圓直徑)。
4.5分度錐角(對於高度變位錐齒輪 ,等於節錐角)。
4.6根錐角。
4.7錐距。
4.8螺旋角及螺旋方向 。
4.9高度變位系數(徑向變位系數)。
4.10切向變位系數(齒厚變位系數)。
4.11測量齒厚及其公差。
4.12測量齒高。
4.13精度等級。
4.14接觸斑點的高度沿齒高方向的百分比,長度沿齒長方向的百分比 。
4.15全齒高。
4.16軸交角。
4.17側隙
4.18配對齒輪圖号。
4.20檢查項目代号及其公差值。
5其他
5.1齒輪的技術要求除在圖樣中以符号、公差表示及在參數表中以數值表示外,還可用文字在圖右下方逐條列出。
5.2圖樣中的參數表一般放在圖樣的右上角。
5.3參數表中列出的參數項目可根據需要增減;檢查項目可根據使用要求確定,但應符全GB11365的規定。
5.4示例見附錄A(參考件)。
附錄A
示例
(參考件)
錐齒輪圖樣上應注明的尺寸數據
附加說明 :
本标準由中華人民共和國機械電子工業部提出 。
本标準由鄭州機械研究所歸口。
本标準由天津齒輪機床研究所負責起草。
本标準主要起草人盛傳倫。
上一篇 上一篇 : 2014亞洲國際動力傳動與控制技術展
下一篇 下一篇: 錐齒輪和準雙曲面齒輪術語一般定義(GB12370-90)
相關新聞文章 > 查看更多
O型圈損壞的原因和措施-設計/選型錯誤 2026-02-03
蝸杆減速機安裝方式詳解 2026-01-08
軸承運轉中檢查與故障處理 2025-12-03
防樣常用的工具有哪些,求相貫線的主要方法有哪些? 2025-09-25
變頻器的工作原理及應用 2025-08-20
錐齒輪承載能力計算方法第 2 部分:齒面接觸疲勞(點蝕)強度計算附錄A(GB/T10062.2-2003) 2025-05-08
平面二次包絡環面蝸杆減速器系列、潤滑和承載能力減速器的承載能力及傳動效率(三)(GB/T16444-1996) 2025-03-21
什麽是凸度滾子?什麽是凸度滾道? 2024-12-02
什麽叫絕對誤差、相對誤差 2024-10-22
什麽是保持轉矩(HOLDING TORQUE)? 2024-09-11
圓柱齒輪 檢驗實施規範 第1部分:輪齒同側齒面的檢驗範圍、引用标準(GB/Z18620.1-2002) 2024-08-19
平面二次包絡環面蝸杆傳動幾何要素代号(GB/T16443-1996) 2024-07-15
返回頂部 關閉本頁】 【打印本頁
電 話 :021-22815912  021-22816186  傳 真:021-32050712   郵箱:sales@021jsj.cn  減速機 絲杆升降機 轉向箱 蝸輪蝸杆減速機
Copyright©2009-2026上海恒點傳動設備有限公司 版權所有  地址:上海市金山區亭林鎮林寶路39号  郵編:200442  滬ICP備10206998号-2 
友情鏈接機械設備網 | 渦街流量計 | 輸送機 | 變頻控制櫃 | 破碎機 | 工業同城 | 手持終端 | 柴油發電機 | uv平闆打印機 | 風淋室 | QUV | 防火門 | 九愛圖紙 | 感應加熱設備 | 輸送帶廠家 | 噪聲治理 | 西門子plc | 拖鏈電纜 | AGV | 機械雜志 | 現代機械 | UWB高精度定位 |