|
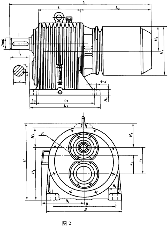
1 YZD系列電(diàn)機(jī)減速器的型式、尺寸見圖1、表1。
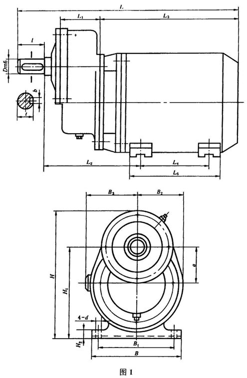
2 YGL、YZL系列電(diàn)機(jī)減速器的型式、尺寸見圖2、表2。
3 YGX、YZX系列電(diàn)機(jī)減速器的型式、尺寸見圖3、表3。
型号 | a | L | B | H | L1 | L2 | L3 | L4 | L5 | B1 | B2 | B3 | H1 | H2 | D
(m6) | l | b | t | d | 質量
kg | YZD112M107 | 75 | ≤480 | 250 | 330 | 85 | 192 | 305 | 140 | 235 | 190 | 125 | 125 | 190 | 15 | 35 | 58 | 10 | 38 | 12 | 70 | YZD132M110 | 100 | ≤633 | 275 | 355 | 115 | 270 | 401 | 178 | 260 | 216 | 140 | 145 | 236 | 17 | 45 | 82 | 14 | 48.5 | 12 | 119 | YZD132M210 | 100 | ≤633 | 275 | 355 | 115 | 270 | 401 | 178 | 260 | 216 | 140 | 145 | 236 | 17 | 45 | 82 | 14 | 48.5 | 12 | 125 |
表2 mm
型号 | 中心距 | L | B | H | L1 | L2 | L3 | L4 | L5 | B1 | B2 | B3 | H1 | H2 | H3 | H4 | H5 | H6 | R | D(m6) | l | b | t | d | 質量
kg | 高速級a1 | 低速級a2 | YGL132M117 | 75 | 100 | 695 | 320 | 333 | 158 | 392 | 30 | 270 | 330 | 250 | 70 | 220 | 200 | 120 | 132 | 265 | 28 | 133 | 155 | 45 | 82 | 14 | 48.5 | 24 | 150 | YGL132M217 | 75 | 100 | 695 | 320 | 333 | 158 | 392 | 30 | 270 | 330 | 250 | 70 | 220 | 200 | 120 | 132 | 265 | 28 | 133 | 155 | 45 | 82 | 14 | 48.5 | 24 | 160 | YGL160L127 | 118 | 150 | 975 | 482 | 460 | 217 | 568 | 33 | 350 | 410 | 380 | 90 | 250 | 300 | 145 | 160 | 315 | 32 | 160 | 218 | 65 | 105 | 18 | 69 | 28 | 350 | YGL180L127 | 118 | 150 | 955 | 482 | 485 | 217 | 548 | 33 | 350 | 410 | 380 | 90 | 290 | 300 | 145 | 185 | 370 | 32 | 160 | 218 | 65 | 105 | 18 | 69 | 28 | 378 | YZL132M117 | 75 | 100 | 734 | 320 | 333 | 158 | 431 | 30 | 270 | 330 | 250 | 70 | - | 200 | 120 | 143 | 285 | 28 | 133 | 155 | 45 | 82 | 14 | 48.5 | 24 | 142 | YZL132M217 | 75 | 100 | 734 | 320 | 333 | 158 | 431 | 30 | 270 | 330 | 250 | 70 | - | 200 | 120 | 143 | 285 | 28 | 133 | 155 | 45 | 82 | 14 | 48.5 | 24 | 154 | YZL160M127 | 118 | 150 | 876 | 480 | 460 | 217 | 464 | 33 | 350 | 410 | 380 | 90 | - | 300 | 145 | 163 | 325 | 32 | 160 | 218 | 65 | 105 | 18 | 69 | 28 | 272 | YZL160M227 | 118 | 150 | 876 | 480 | 460 | 217 | 464 | 33 | 350 | 410 | 380 | 90 | - | 300 | 145 | 163 | 325 | 32 | 160 | 218 | 65 | 105 | 18 | 69 | 28 | 285 |
注:當需要降低總高H時,可去掉吊環螺釘,並制成平頂,H6降爲H2。 
表3 mm
型号 | L
≤ | B | H | L1 | L2 | L3 | L4 | L5 | B1 | B2 | B3 | H1 | H2 | H3 | H4 | R | D
(m6) | l | b | t | d | 質量
kg | YGX132M111 | 698 | 280 | 307 | 268 | 340 | 33 | 190 | 240 | 220 | 60 | 220 | 140 | 265 | 132.5 | 22 | 133 | 50 | 82 | 14 | 53.5 | 20 | 142 | YGX132M211 | 698 | 280 | 307 | 268 | 340 | 33 | 190 | 240 | 220 | 60 | 220 | 140 | 265 | 132.5 | 22 | 133 | 50 | 82 | 14 | 53.5 | 20 | 158 | YGX132M121 | 716 | 305 | 325 | 286.5 | 340 | 25.5 | 205 | 265 | 235 | 65 | 220 | 140 | 265 | 132.5 | 25 | 140 | 60 | 105 | 18 | 64 | 25 | 165 | YGX132M221 | 716 | 305 | 325 | 286.5 | 340 | 25.5 | 205 | 265 | 235 | 65 | 220 | 140 | 265 | 132.5 | 25 | 140 | 60 | 105 | 18 | 64 | 25 | 181 | YGX160L141 | 978 | 380 | 425.5 | 373 | 486 | 48 | 250 | 310 | 320 | 75 | 250 | 180 | 315 | 157.5 | 33 | 180 | 80 | 130 | 22 | 85 | 28 | 323 | YGX132M122 | 825 | 305 | 325 | 382 | 340 | 27 | 280 | 340 | 235 | 65 | 220 | 140 | 265 | 132.5 | 25 | 140 | 60 | 105 | 18 | 64 | 25 | 167 | YGX132M242 | 907 | 380 | 425.5 | 465 | 340 | 40 | 355 | 415 | 320 | 75 | 220 | 180 | 265 | 132.5 | 33 | 180 | 75 | 105 | 20 | 79.5 | 28 | 238 | YGX160L152 | 1195 | 420 | 465 | 590 | 486 | 62 | 445 | 535 | 360 | 75 | 250 | 200 | 315 | 157.5 | 35 | 200 | 90 | 130 | 25 | 95 | 28 | 446 | YZX132M121 | 746 | 305 | 363 | 286.5 | 370 | 25.5 | 205 | 265 | 235 | 65 | - | 140 | 285 | 142.5 | 25 | 140 | 60 | 105 | 18 | 64 | 25 | 153 | YZX132M221 | 746 | 305 | 363 | 286.5 | 370 | 25.5 | 205 | 265 | 235 | 65 | - | 140 | 285 | 142.5 | 25 | 140 | 60 | 105 | 18 | 64 | 25 | 155 | YZX160M141 | 945 | 380 | 440 | 373 | 453 | 48 | 250 | 310 | 320 | 75 | - | 180 | 325 | 162.5 | 33 | 180 | 80 | 130 | 22 | 85 | 28 | 247 | YZX132M242 | 946 | 380 | 403 | 465 | 370 | 40 | 355 | 415 | 320 | 75 | - | 180 | 285 | 142.5 | 33 | 180 | 75 | 105 | 20 | 79.5 | 28 | 222 | YZX160M152 | 1061 | 420 | 465 | 590 | 365 | 62 | 445 | 535 | 360 | 75 | - | 200 | 325 | 162.5 | 35 | 200 | 90 | 130 | 25 | 95 | 28 | 360 |
|